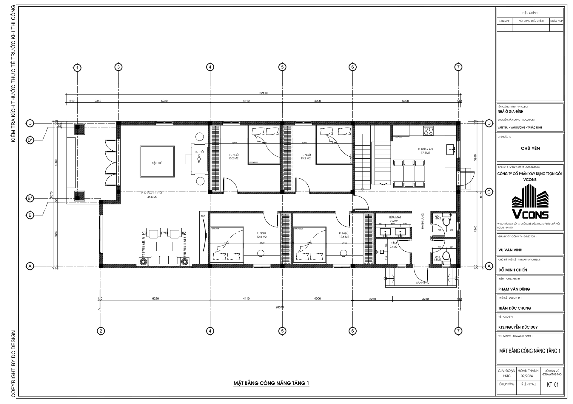
THÔNG TIN CÔNG TRÌNH
- Tên công trình: Nhà ở riêng lẻ
- Địa chỉ: Băc Ninh
- Chủ đầu tư: Chú Yên
- Tổng thầu: Công ty cổ phần xây dựng trọn gói Vcons
- Quy mô công trình: 4 tầng + 01 tum + gara
- Tổng diện tích: 230m2
- Tổng mức đầu tư: 1.6 tỷ
















“Hiện tại công trình vẫn đang trong giai đoạn hoàn thiện. Cùng Vcons chờ đón những hình ảnh và hạng mục tiếp theo được cập nhật trong thời gian tới.”
-----------------------------------
Anh/chị đang có nhu cầu nhận tư vấn miễn phí về xây dựng nhà trọn gói bao gồm: CÔNG NĂNG, KHÁI TOÁN SƠ BỘ, PHONG THỦY KHOA HỌC, CẤP PHÉP XÂY DỰNG,..
Hãy gọi ngay cho chúng tôi hoặc inbox fanpage để được tư vấn miễn phí & báo giá rõ ràng

CÔNG TY CỔ PHẦN XÂY DỰNG TRỌN GÓI VCONS
Chuyên nghiệp - Tin Cậy - Tận Tâm
Địa chỉ văn phòng trụ sở chính Hà Nội: Số 170 Trần Vỹ, Mai Dịch, Cầu Giấy, Hà Nội.
Chi nhánh văn phòng Bắc Ninh: Số 62 Ngô Quyền, P Kinh Bắc, TP Bắc Ninh.
Chi nhánh văn phòng Bắc Giang: Số 6 Đường Tạ Thúc Bình - KDT Bách Việt Lake - Tp Bắc Giang .
Hotline: 0916 794 111
Website: https://xaydungvcons.com/




