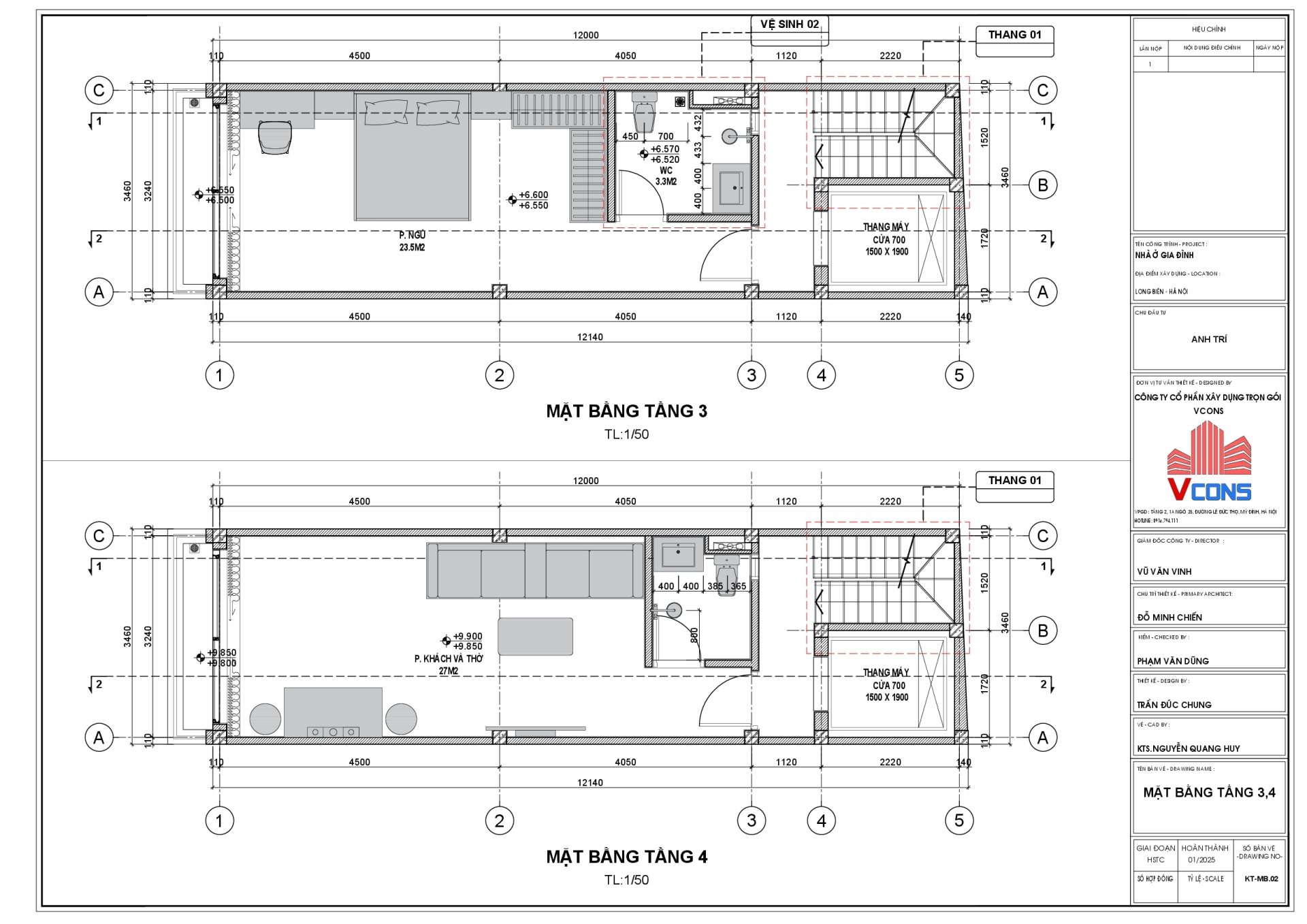
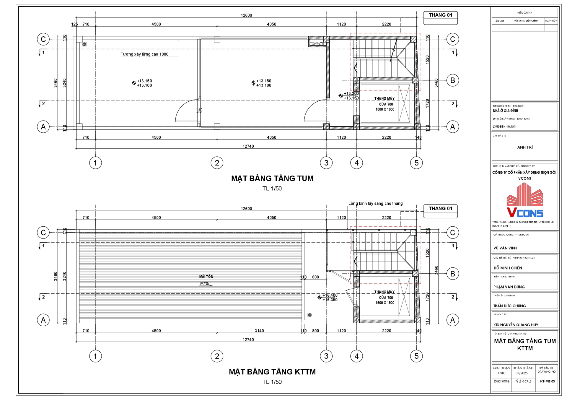
THÔNG TIN CÔNG TRÌNH
- Tên công trình: Nhà ở riêng lẻ
- Địa chỉ: Trần Đại Nghĩa – Hà Nội
- Chủ đầu tư: Anh Trí
- Tổng thầu: Công ty cổ phần xây dựng trọn gói Vcons
- Quy mô công trình: 4 tầng + 1 tum
- Tổng diện tích: 120m2
- Tổng mức đầu tư: 1.3 tỷ (bao gồm cả nội thất)





















-----------------------------------
Anh/chị đang có nhu cầu nhận tư vấn miễn phí về xây dựng nhà trọn gói bao gồm: CÔNG NĂNG, KHÁI TOÁN SƠ BỘ, PHONG THỦY KHOA HỌC, CẤP PHÉP XÂY DỰNG,..
Hãy gọi ngay cho chúng tôi hoặc inbox fanpage để được tư vấn miễn phí & báo giá rõ ràng

CÔNG TY CỔ PHẦN XÂY DỰNG TRỌN GÓI VCONS
Chuyên nghiệp - Tin Cậy - Tận Tâm
Địa chỉ văn phòng trụ sở chính Hà Nội: Số 1A, ngõ 35 Lê Đức Thọ (gần SVĐ Mỹ Đình).
Chi nhánh văn phòng Bắc Ninh: Số 62 Ngô Quyền, P Kinh Bắc, TP Bắc Ninh.
Chi nhánh văn phòng Bắc Giang: Số 6 Đường Tạ Thúc Bình - KDT Bách Việt Lake - Tp Bắc Giang
Hotline: 0916 794 111
Website: https://xaydungvcons.com/




